
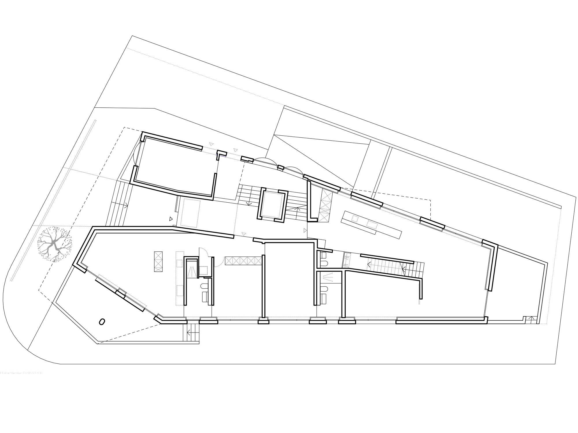
erdgeschoss

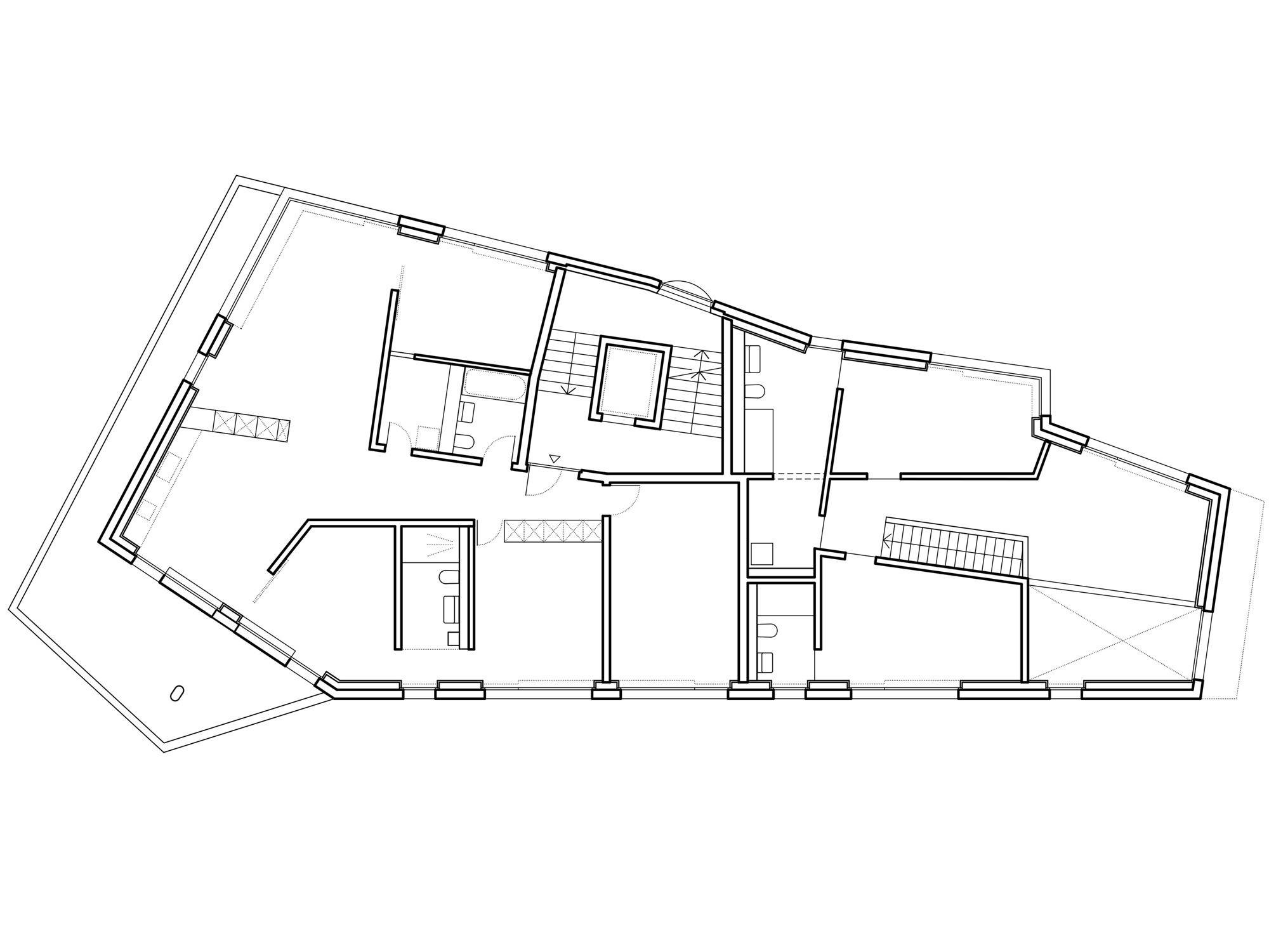
1.obergeschoss
das neue mehrfamilienhaus an der seidenstrasse ist im rohbau.
die zunehmende verdichtung des umliegenden quartiers am rand des dorfzentrums von lachen und die kleinteilige bauweise des ehemaligen arbeiterhauses machten seinen erhalt schwierig.



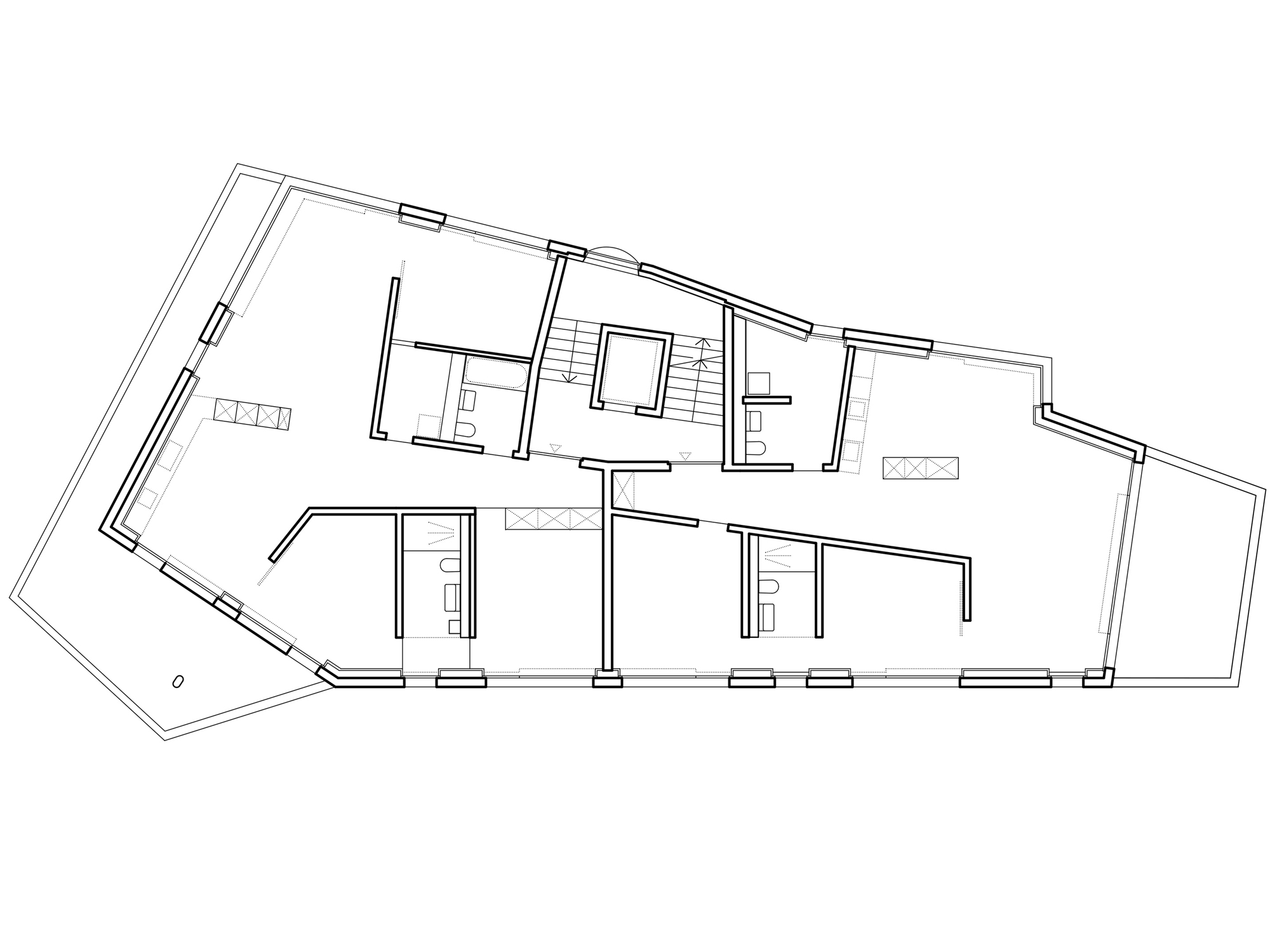
der neubau trägt den veränderten bedingungen rechnung. er ermöglicht die räumliche verdichtung und gliedert sich mit seiner knochigen volumetrie in die im umbruch befindliche umgebung ein. der baukörper markiert die kreuzung prägnant und verjüngt sich entlang der speerstrasse. adresse und zugänge für fussgänger und auto erfolgen von der seidenstrasse, die wohnungen öffnen sich gegen süden zur ruhigeren speerstrasse. sechs wohnungen unterschiedlichen charakters und verschiedener grösse bieten wohnraum an für eine bunte mieterschaft und vielfältige lebenssituationen. der dachgarten mit weitsicht in die berge und auf den see steht allen bewohnern als begegnungsort offen.

2.obergeschoss


der bau wird in sichtbeton ausgeführt, die umlaufenden brüstungsbänder wirken als überzüge und binden balkone und fassade räumlich und statisch ein. die materialpallette mit beton holz und glas wird komplettiert durch den roten stoff der Markisen zusammen sollen sie dem bau seine wohnliche heiterkeit vermitteln. Die trapezoide form der parzelle verleiht den wohnungen ihre charakteristik. die eingangssituation öffnet sich als raumkontinuum zu küche, essen und wohnen, die beiden anschliessenden zimmer können über die schiebetüren an der fassade ebenfalls mit eingebunden werden. entlang der fassade sind die wohnungen durchlässig, die zwischen zwei zimmern liegenden nassräume verbinden lassen raumfolgen entstehen und die wohnung auch im rundlauf erleben. die grossen öffnungen der fenster gewähren weitblick und helligkeit, die brüstungen fassen die räume und bieten geborgenheit. die fassaden sind innengedämmt und mit seekiefersperrholz verkleidet, welches zusammen Sichtbeton und Einbauelementen in Grün die innere fassadenverkleidung und die küchen in seekiefer-sperrhoz prägen nebst sichtbeton und salbeigrün der einbauten die stimmung der räume.





attika

untergeschoss